星河湾合院式独栋别墅-天宸国际社区|百科

黄石楼市发布 2024-03-06 13:49:11
用手机看
扫描到手机,新闻随时看

扫一扫,用手机看文章
更加方便分享给朋友

天宸国际社区位于闵行城区,面积520-825平,指导房价为5万/㎡,售楼处为400-997-8009。项目由仲盛集团开发,拥有30万平方米的购物中心和新鸿基天荟购物中心中心、泰富“海梦一方”凯德龙之梦、麦多生活广场、大润发、好爱广场等...

天宸国际社区面积520-825平,参考房价5万/㎡ ,详情:400-997-8009【天宸国际社区售楼处】

项目名:天宸国际社区

备案名:《天宸国际》

售楼处:400-997-8009

楼盘地址:上海市闵行区银都路2889号。星河湾隔壁「天宸国际社区售楼处」

项目简介:都市中式合院别墅

最新动态:火爆销售中

区域板块:闵行城区

产品介绍:建面约520-825平,指导房价5万/㎡

商业配套:由我司集团母公司仲盛集团开发并持有经营的仲盛世界商城总体量达30万平方米,涵盖大型超市、精品时尚、流行餐饮、休闲娱乐、儿童乐园等业态的一站式购物中心

新鸿基天荟购物中心中心泰富“海梦一方”凯德龙之梦,麦多生活广场、大润发、好爱广场。

周边学校:公立教育,闵行实验小学和上中教育集团直属的九年制公立学校,北京外国语大学附属田园高级中学私立教育,河湾双语学校毕、康奈尔等常青藤名校,蒙特梭利幼儿园

医疗配套:天宸康复医院为区域内排名前列三级医院,总建筑面积达36800m2,批复床位数达387张,配有高压氧仓等高端医疗设备,是区域内级别较高、设施最完善、规模较大的康复医院。医院与华东医院共建,以“大专科,小综合”为特色,在运动康复、脑神经、心肺康复、儿童康复等方面具有突出优势。中心医院(二级甲等),中山医院南院。

天宸国际社区社区详情

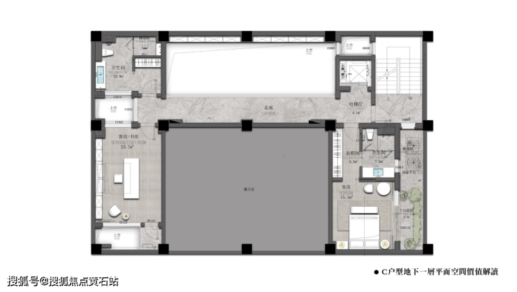
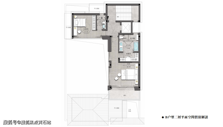
天宸国际社区的合院产品共有127套,4种户型,主力户型的面积在540~580平方米左右,包括地上两层和地下两层在内,地上面积约250~350平方米左右,地下面积在280~420平方米左右。一层层高约3.8米,二层层高约3.3米,装修后净高约2.9米。地下空间层高约3~6米,装修后净高约2.2至5.2米。每个户型都是全套间设计,拥有4~5个套间,每户还配置有2至3个车位。

A户型:525-607平

B户型:470-605平

C户型:563-717平

D户型:748-825平

更多详情:400-997-8009【天宸国际社区售楼处】

天宸国际社区-欢迎您!!

声明:本文由入驻焦点开放平台的作者撰写,除焦点官方账号外,观点仅代表作者本人,不代表焦点立场。