闵行兰香湖贰号双拼别墅能不能买?楼盘详情一文读懂

黄石楼市发布 2025-11-21 02:16:42
用手机看
扫描到手机,新闻随时看

扫一扫,用手机看文章
更加方便分享给朋友

兰香湖2号位于闵行区紫竹国家级高新区兰香湖西路与兰香湖南路交汇处,步行至15号地铁紫竹高新区站约1500米,23号华师大地铁站约900米(预计2028年通车)。除了便捷的交通外,兰香湖2号附近商业、医院配套完…

兰香湖2号位于闵行区紫竹国家级高新区兰香湖西路与兰香湖南路交汇处,步行至15号地铁紫竹高新区站约1500米,23号华师大地铁站约900米(预计2028年通车)。除了便捷的交通外,兰香湖2号附近商业、医院配套完善,同时也是闵行区第一梯队学区-华师大教育集团附属学校学区房。

详情:📞021-39527365(售楼处)

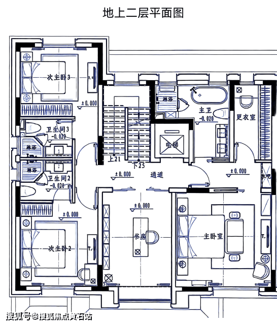
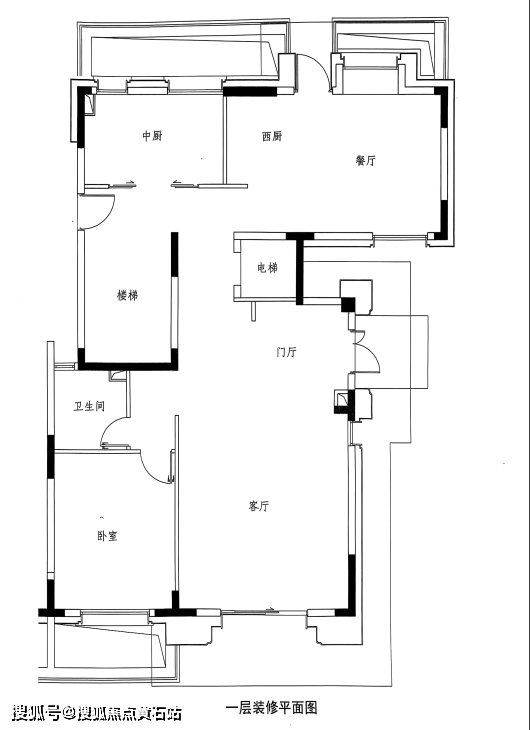
兰香湖2号最后一批72套双拼别墅于2025年10月16日正式开盘,建筑面积约210㎡,套内可使用面积约540㎡,参考总价2500-2600万,于2027年3月精装交付,款清即可办理产证。

详情:📞021-39527365(售楼处)

兰香湖2号 北临河户型鉴赏

兰香湖2号 南临河户型鉴赏

兰香湖2号每户均赠送100-120平左右的花园面积,且每户均带水岸码头!

兰香湖2号双拼别墅是市面上稀缺产品,买到即赚!

详情:📞021-39527365(售楼处)

温馨提示:开盘前期客户量比较集中,看房请提前预约,感谢您的配合!

声明:本文由入驻焦点开放平台的作者撰写,除焦点官方账号外,观点仅代表作者本人,不代表焦点立场。