天荟悦麟楼盘首页:莘庄核心 + 地铁上盖,查询即享
扫描到手机,新闻随时看
扫一扫,用手机看文章
更加方便分享给朋友
项目名称:天荟悦麟
所属板块:闵行莘庄(莘庄站上盖)
楼盘地址:上海市闵行区沪闵路6333-2、4号
建筑高度:39层150米
单层层高:3.3米
产权性质:商办50年
户型面积:153-185㎡
参考单价:4.45-5.8万元/㎡
参考总价:760-1200万
梯户配比:三梯四户
开发商:香港新鸿基地产、上海城开、闵行城投
物业公司:新鸿基启胜物业
物业费:15元/㎡/月
交付时间:现房
交付标准:精装(中央空调+新风)
营销中心:021-39527365
注:周边住宅价格10-12万/平,天荟悦麟 超高性价比 赢得众多老板的青睐。
好地段+高品质+超高性价比的房价=天荟悦麟 热销秘诀

天荟悦麟由香港新鸿基、上海城开、闵行城投共同打造,项目位于上海重要的西南入城门户、G60科创走廊的主城区桥头堡——莘庄
未来10年,莘庄板块也不会出现比天荟悦麟位置更好,品质更高的楼盘了,高端资产,值得珍藏!

TODTOWN天荟项目开发模式
TOD(Transit-Oriented Development)开发模式,即:以火车站、机场、地铁、轻轨等轨道交通及巴士干线等公交站点为中心、以5~10分钟步行路程为半径建立中心广场或城市中心,集工作、消费、文化、商务、居住等为一体的步行化城区开发模式。
运用国际先进的设计理念,使各业态如商场、办公楼、酒店、住宅与公交枢纽之间做到了直接互通。

TODTOWN天荟项目整体规划
项目总体量约70万㎡,项目涵盖了
秘境大宅【悦麓】— 一期2020年交付
创智公馆【悦麟】— 2024年交付
天荟广场【TODTOWN MALL】— 2025年Q4开业
天荟云洲【TODTOWN TOWER】— 2025年Q2交付
凯悦尚萃酒店【HYATT CENTRIC】—2026年Q4开业
详情:021-39527365(售楼处)

TODTOWN天荟项目交通占位
上海连接长三角的西南门户 汇集多条城际城市群 畅达长三角城市群
·闵行莘庄是上海2035规划中的主城副中心,更是上海重要的西南门户,天荟位于莘庄主城副中心的枢纽核心区,项目周边拥有S2(京沪高速),G60(沪杭高速),G15(沈海高速),G1522(常台高速)等主要高速公路;
·天荟自身内部的综合交通枢纽中有莘虹快线及机场9线每天穿梭于莘庄枢纽和上海虹桥(西)交通枢纽和浦东国际机场;
·天荟自身内部的综合交通枢纽中设有铁路莘庄站,已于2025年1月5日建成通车,铁路金山线在此停靠,预留铁路沪杭客运专线上下客站台,未来能快速通达长二角一小时经济圈中的各大城市。

天荟悦麟实景展示—电梯及大堂
·大堂挑高9米,A/B两个单元共享大堂, A/B两个单元有单独的电梯前室与休息区。
·所有大堂、电梯轿厢、电梯前室等公区均依照酒店标准进行装修交付,并有背景音乐与环境香氛。

实景展示—共享空间
创智公馆5楼设置了共享空间,业主可免费使用,包括休憩洽谈区域、电视会议区域。

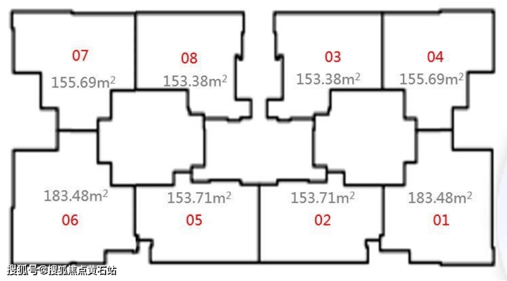
天荟悦麟 户型介绍
·该栋分为A/B单元,每个单元有四个单位:包含3套150㎡及1套180㎡,平面布局与住宅相似
·标准层建筑层高3.3米,得房率约77.4%,三梯四户,使用私密性较好
详情:021-39527365(售楼处)

天荟悦麟 实景展示—室内交付标准
项目室内交付配备独立中央空调、新风、落地窗、独立卫生间、智能入户门

天荟悦麟 实景展示—创意样板间
产品特色:空间百变,非承重墙均能拆除,根据自身所需调整套内格局

天荟悦麟 可多套随心组合
自由打造153-496㎡灵动面积空间




天荟悦麟热销中,因车位紧张,来访前请预约时间并登记车牌,感谢您的配合。
预约专线:021-39527365
温馨提示:正常接待时间9:00-18:00,若来访时间较晚,提前预约,可安排置业顾问值班。
声明:本文由入驻焦点开放平台的作者撰写,除焦点官方账号外,观点仅代表作者本人,不代表焦点立场。
