平湖鸿翔·北宸里2023更新版
黄石楼市发布 2023-08-13 18:04:44
用手机看
扫描到手机,新闻随时看
扫一扫,用手机看文章
更加方便分享给朋友
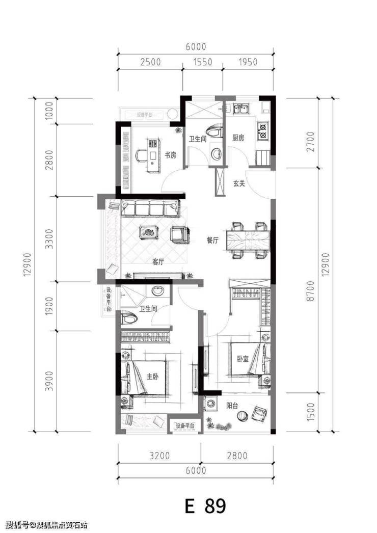
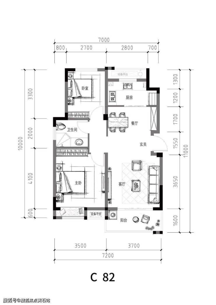
平湖鸿翔·北宸里营销中心:400-870-6009占地面积:5.7万方建筑面积:14.7万方总体量:1100套绿化率:35%容积率:1.8面积:70-90平平湖北宸里户型品鉴更多详情:400-870-6009…
声明:本文由入驻焦点开放平台的作者撰写,除焦点官方账号外,观点仅代表作者本人,不代表焦点立场。
